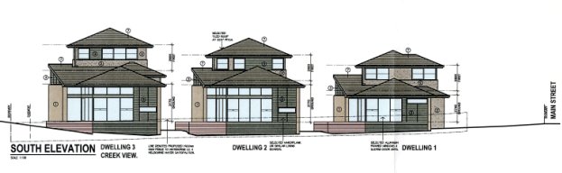
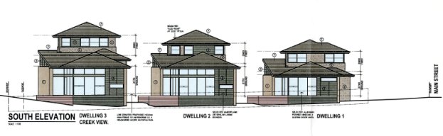
60 Main Street Development – Latest in the Saga
- It seems we have something new to report to you on the proposed inappropriate development at 60 Main Street every month!
- The latest news is that the auction proposed for Saturday 28th at 11:00 has been abandoned in favour of a private sale.
- Council received about 65 objections from the community. To put that level of community disapproval in context, a similar number of objections was received by council for the massive 310 dwelling development of up to seven storeys on the former St Leo’s site in Box Hill South.
- For more information and an updated, potted history of the 60 Main Street saga to date, please click here.
Malcolm Street Billabong Reinstatement Project
Background
- The Malcolm Street Billabong Reinstatement Project is nearing completion. The billabong and its associated northern pond are located just south of the creek in central Kalang Park.
- Prior to the burgeoning development of Melbourne’s eastern suburbs, the creek was much shallower and the billabong regularly held water after rain. More recently, the billabong does not behave as it historically used to when it held water for longer, although still ephemerally.
- This change would be due to the combination of:
- Increasing water flows in the creek due to the enormous increase in hardsurfacing as houses were built and consequent increased water run-off causing the inevitable erosion that has incised the creek down to the rock. The deep banks means water rarely overflows from the creek these days.
- Less water reaching the billabong from the Malcolm Street slope due to the installation of street and housing storm-water drains.
- These factors left the billabong somewhat “high and dry” though it occasionally held water for a very short time after heavy rain.
Objective
- The objective of the project is to restore the functioning of the billabong to something like its former glory by diverting some of the Malcolm Street storm-water to the billabong. Prior to this project, all of the storm-water from Malcolm Street was piped underground directly to the creek.

How it is to work
- The idea is to supply water to the billabong by taking a feed from a nearby storm-water pit which serves Malcolm Street. The pit is fitted with the ability to control how much water is diverted to the billabong (to tune it).
- The maximum water level of the northern pond is also tunable – this will control the maximum volume of water in the pond and the billabong itself.
- Storm water will flow into the main billabong and then fill the northern pond via a culvert under the path. The pond will have the effect of further slowing flows to the creek down and performing additional filtering. Large flows that fill the billabong and pond will eventually enter the creek through a pipe over a rock treatment to help prevent creek bank erosion.
- Water will not be diverted to the secondary pond to the east of the northern pond so as to protect the Yellow Box gums near it from over-saturation. This pond occasionally holds water after major rain or creek flooding events.
- The controls in the off-take are designed to direct the “first flush” of storm water (which would contain most of the pollutants from the Malcolm Street roadway etc) into the storm-water system as usual – only cleaner water will go to the billabong where the plants etc will act like a rain garden to further cleanse the water.
- The desired result is that the main billabong holds water longer – supporting reintroduced water-loving plants such as Juncus and Carex while providing restraints against flooding together with benefits in cleaning re-directed water eventually going into the creek via settling and filtration.
- Many Friends will remember the working bee in May last year where we started planting out the billabong area (refer May, 2014 news). Once the construction work is completed, we will be able to return to the exciting work of further planting out this area.
Main Street Bridge – storm water pipes/ bridge maintenance
- Last month, we reported on Whitehorse City Council (WCC) works to replace storm water drains /pits and perform bridge maintenance at the Main Street bridge. The first stage of this work has been successfully completed.
- One side-effect of this work was replacement of the old vehicle crossing in front of the site of the former MMBW house adjacent to the creek. This was the last vestige of the old house – please click here and here for more information on this house, one of the “secrets” of the Creeklands. Happily, we took the photo above for posterity!
- Later stages will be:
- Bridge maintenance including significant excavation work to restore the bridge’s culverts to correct function – one has badly silted up and erosion needs to be corrected. This will be quite a big job. We expect equipment access will be from the north-eastern side of the bridge.
- The road will be re-sheeted.
- Bridge handrails will be updated to modern standards. Committee is trying to convince Council that timber posts decorating the new handrails would help integrate the new work into the existing park “look” (see the Furness Park pedestrian bridge and the Pakenham Street road bridge for examples).
Thanks to Bunnings (Box Hill)
- The soils in the park are very variable – often comprised of dumped fill and very often hydrophobic. When planting out, we often use a wetting agent called Wettasoil when planting new plants to aid the penetration of water into the soil – to give seedlings a better chance of survival (it usually being impractical to return to water new plants).
- We are pleased to acknowledge that Bunnings (Box Hill) has generously donated 5 x 1 litre bottles of Wettasoil for our use during the coming planting season.
New Residential Zones in Whitehorse
- The State Government’s Residential Zones Standing Advisory Committee is now inviting views of the changes Council proposed for the local Planning Scheme last May.
- While the Neighbourhood Character statements are now part of the Planning Scheme without transitional measures, the individual NRZ1-5 zones with specific protections were not accepted.
- Our Committee believes that Council’s proposed zonings generally offered good protection for the park and deserve our support. If you’d like to make a submission, the deadline is 5:00PM Friday, 6th March, 2015. You can find more information and relevant links here.
Maintenance Team Activities
- The team is currently working along Heath Street near Blackburn Road.
- The area to the north of the Laurel Grove bridge has been weeded and cleaned up.
- The removal of the ivy patch and weeding the indigenous Microlaena grass patches have considerably improved the overall look of the land adjacent to 60 Main Street.
- We have not arranged an activity for Clean Up Australia Day. If you’d like to “do your bit” for that program, activities are planned at the Blackburn Lake Sanctuary on Sunday March 1st, 2015 10:00-12:00. Interestingly, the volunteer Committee at the lake will celebrate its 50th Anniversary this year!
- Our thanks to Friend Cathy – who was able to lend a hand on Thursdays during her University vacation.
- By the way, if you’re finding it hard to find a seat in Kalang Park (like the odd duck out above), Council has promised to install a new seat at the northern track entrance near the Main Street bridge adjacent to 60 Main Street – once the woody weed removals are completed there…
The Way We Were (1962)
- The photo above shows the culvert at Pakenham Street under construction in 1962. This is another photo from our Friend Frances – who was one of the early pioneers of Pakenham Street on the south side of the creek.
- Prior to the culvert being built, Pakenham Street did not cross the creek. At that point in time, neither Laburnum Primary School nor the Blackburn Bowls Club existed. Here are Frances’ words on the subject:
Plant of the Month
- Plant of the Month is Pale Knotweed (Persicaria lapathifolia). Despite its name including the word “weed”, this is one of those plants the more experienced know is indigenous – though is also distributed in North Africa, Asia and Europe as well.
- It is an annual or biennial herb with reddish, knobby-kneed joints and is showing off its pale pink flowers in the park at the moment. Although the flower is different, the plant otherwise looks rather like Vietnamese Mint. It likes to grow along permanent watercourses such as our creek and in areas that remain wet in winter.
- A good place to see it is at the “Frog Bog” – click here for a map.
- Friends have made enquiries about last month’s plant of the month – Sweet Bursaria (Bursaria spinosa). A little bird (a Pardalote?) has told us that the Greenlink nursery has quality stock ready to go if you’d like to add that attractive plant to your garden. The Bungalook nursery also has plenty of stock – as well as Leptospermum continentale (Prickly Tea-tree) and Coprosma quadrifida (Prickly Currant-bush). Both the latter shrubs provide excellent havens for the smaller indigenous birds.
Weed of the Month
- Weed of the Month is Agapanthus (Agapanthus praecox ssp orientalis).
On the positive side, Agapanthus is drought resistant and good at stabilizing banks. On the negative side, it is a prolific and hard-to-eradicate, introduced weed. We’d like all our friends and neighbours to dead-head your Agies once flowering is finished, so seed does not enter the creek and the park via the storm-water system .
- Alternatively, you might consider replacing them with an indigenous plant of similar habits (eg a species of Dianella or Lomandra). Please see our Useful Links page for details of the local indigenous plant nurseries who will be able to help you with choices.
Fauna Sightings
- The park seems to have a Heron addiction this month! :
- There have been Nankeen Night Heron sightings at the Laurel Grove footbridge and at the Waratah Wetlands (see above) – also
- White-faced Heron sightings also at the Laurel Grove footbridge and near the Scout Hall in the creek.








Pingback: Frog Photo Scoop! | The Blackburn Creeklands